Extension of the Jochbergengasse School
2019
2019
Jochbergengasse 1, 1210 Vienna
Competition 1st prize, 2017
Client: WIP, City of Vienna – MA 56
Area: approx. 8,400 m2 GFA (new building)
Space allocation plan: Extension of the elementary school by 7 classrooms and an after-school day-care room; 4 specialized secondary school classes, library, bistro with dining hall, gymnasium; addition of a polytechnic school with 8 classes including workshops; outdoor area with sports facilities and quiet inner courtyard; barrier-free access in both new and existing buildings
Landscape Architecture: Carla Lo Structural design, building physics, building services, fire protection: Vasko + Partner General contractor: Granit
Photos: Kurt Hoerbst
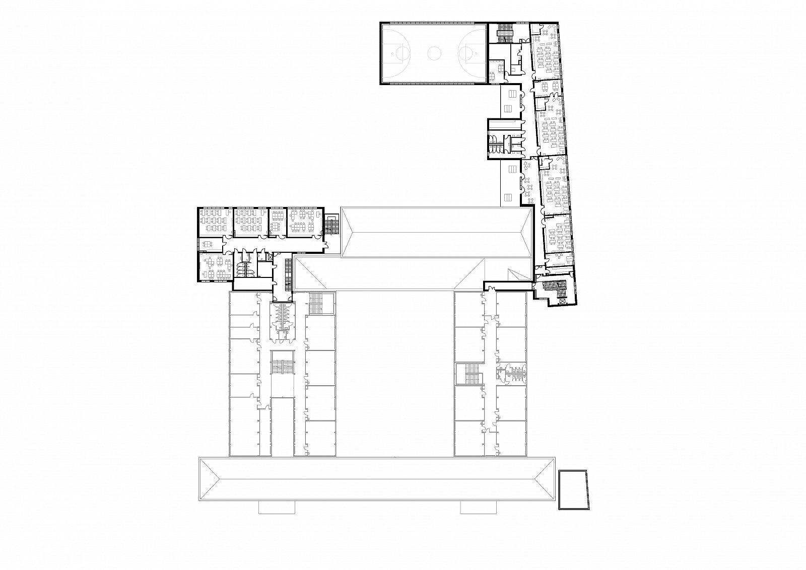
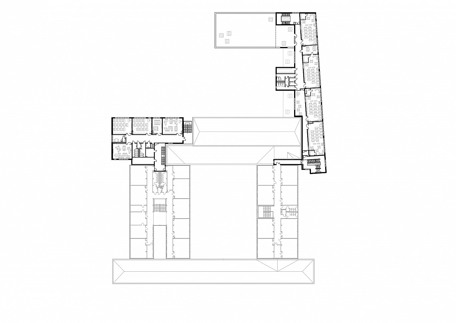
By adding two buildings to the existing buildings from the 1970s, the Elementary School and the New Middle School were extended by additional classrooms and facilities for afternoon care as well as a Polytechnic School to form a new educational centre.
The extension of the Polytechnic School to the west of the site takes up the alignment of the single-storey entrance hall and the existing gymnasium. The L-shaped new building wing of the elementary school encloses the open space of the elementary school and forms an urbanistic edge to the east while the new gymnasium wing, on whose roof a spacious terrace was placed, connects to the neighbouring school complex to the north. The extensions are connected to the existing wings in such a way that a new, barrier-free holistic entity is created. Large glass surfaces between the educational rooms towards the access areas and the multifunctional areas ensure a spacious interior, well supplied with daylight.
The extension of the Polytechnic School to the west of the site takes up the alignment of the single-storey entrance hall and the existing gymnasium. The L-shaped new building wing of the elementary school encloses the open space of the elementary school and forms an urbanistic edge to the east while the new gymnasium wing, on whose roof a spacious terrace was placed, connects to the neighbouring school complex to the north. The extensions are connected to the existing wings in such a way that a new, barrier-free holistic entity is created. Large glass surfaces between the educational rooms towards the access areas and the multifunctional areas ensure a spacious interior, well supplied with daylight.

1st Prize
Campus Meißen

1st Prize
Primary school and School for Inclusive Education Castelligasse

1st Prize
Primary School and Middle School Florian-Hedorfer-Straße

1st Prize
Primary School
Dr. Skala-Straße
Dr. Skala-Straße

1st Prize
Campus Innerfavoriten

1st Prize
Primary School and Middle School Langobardenstraße

1st Prize
Middle School Wienerberg

1st Prize
Primary School and Middle School Grundäckergasse

1st Prize
Extension of the Jochbergengasse School

1st Prize
Primary School Christian-Bucher-Gasse

Kindergarten Pötzleinsdorf

Chamber of Labour Education and Training Centre

School buildings in timber construction

Waldschule
("Forest School")
("Forest School")

Primary School
Prückelmayrgasse
Prückelmayrgasse

Kindergarten Schrebergasse

Kindergarten
Anton-Schall-Gasse
Anton-Schall-Gasse













